09.10.2025
08:36
Выберите решающее направление
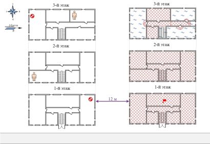
Наличие угрозы жизни и здоровью людей - применение сил и средств для спасения людей, оказания им первой помощиНаличие угрозы взрыва (обрушения конструкций) - применение сил и средств для предотвращения данной угрозы
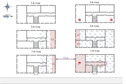
Охват огнем части объекта пожара и возможности его дальнейшего распространения - применение сил и средств для ограничения дальнейшего распространения пожара
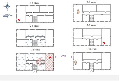
Полный охват огнем объекта пожара и возможность распространения пожара за его пределы - применение сил и средств на защиту соседних объектов
Полный охват огнем объекта пожара и отсутствие угрозы распространения пожара на соседние объекты - применение сил и средств в местах наиболее интенсивного горения объекта пожара










